天山四村家电维修安装 装修犯迷糊?让天山四村这套40平米的装修案例给你点建议
装修犯迷糊?让天山四村这套40平米的装修案例给你点建议
好多人都喜欢那种复杂的装修风格,感觉那样的装修高端大气上档次,其实不然,过于复杂的装修让室内空间臃肿且凌乱,而且特别浪费钱,打扫也是个难题。不如借鉴天山四村这套40平米的装修方案,采用欧式风的装修,装修效果简直好到爆!
本案户型偏小且格局狭长,以简单线条代替复杂花纹,墙面采用更为明快的颜色,既保留了欧式的典雅与繁华,又更适应现代生活的休闲与舒适!
客厅的基本布局通常是由一组座椅或沙发和配套茶几组成,此外还根据需要配置视听设备,还可以根据个人爱好,从整体出发,陈列一些装饰品,并适当配置盆栽绿化。
通过设计师的设计,小空间也可以凸显奢华大气,客厅和卧室做了简单的隔断,神秘的紫色和华贵的银色搭配更显奢华精致
卧室里不要放过多的电器,特别是电视、笔记本,辐射和电源灯都会影响睡眠。大部分的人都喜欢躺在床上看书或看电视,这种行为非常不可取,它也会对我们的健康造成影响。
卧室整体空间在灯光的设计上做了较多层次的光源处理来加强层次感
欧式花纹的瓷砖构成了墙砖与地砖,统一的材质即延伸空间又在形式上形成统一,采用白色橱柜与石质台面的结合,使得这个小空间也具有精致与大气
卧室衣柜设计为内嵌式,既节省空间,又美观大方
餐厅在装修的时候可以选择一些装饰来丰富整个空间,一些屏风和小挂饰都是很好的选择,但是注意餐厅的地面不要使用地毯进行装饰,以免食物掉落后难以清理。
考虑到过道很窄,设计师巧妙地用那段过道做了餐厅,并且靠边做了吧台设计,也使得空间更有层次!
厨房往往面积小、东西多、油烟重,而且很多人仅仅只把厨房当做一个“煮饭的地方”,并没有好好设计,于是在使用的过程中就会出现很多困扰。一个好的厨房,应该是个设计周全、符合人体工学、带来满满幸福感的地方!
厨房空间偏窄,一扇窗户为餐厅空间增加了许多自然采光
现代人的书房已经不仅仅是学习的地方,有的人喜欢放电脑,既是休闲娱乐也是办公场所,这个空间的光线不易太强,时间长了会让人产生视觉疲劳,影响工作效率。
阳台部分设计成了书房与梳妆台,充分利用了每一处空间
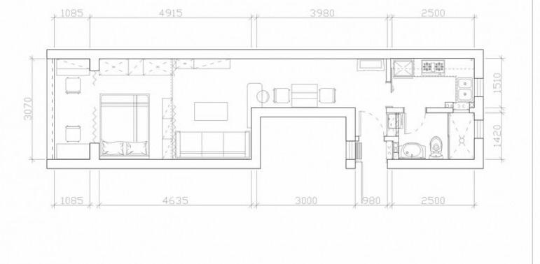
以下就是本套天山四村小区40平米一居室房子的户型图。
户型:一室两厅一卫面积:40平方米
关于40平米的一居室,采用欧式风格装修的效果如何的相关信息,小编就为大家介绍到这里了,您看看这些装修小窍门是否能够为你装修的时候带去帮助。
40平米新房,一居室装修才花4万元,邻居看了羡慕不已!-天山四村装修
本文介绍的案例位于天山四村,业主是第一次装修,房屋总面积40平米,考虑到生活需求,业主将40平米的房子装修成一居室。业主钟爱欧式风格,所以房子整个装修风格都是采用的欧式。业主透露本套40平米的房子装修只花了4万。一起来看看效果图吧!
装修公司:C+创意空间总部预算:4万风格:欧式案例套数:73更多
本案户型偏小且格局狭长,以简单线条代替复杂花纹,墙面采用更为明快的颜色,既保留了欧式的典雅与繁华,又更适应现代生活的休闲与舒适!
客厅是我们日常生活中带人接客的主要场所,所以一个端庄大气的客厅才是最好的选择。要集实用与大方于一体,功能性强才是最好的装修。
通过设计师的设计,小空间也可以凸显奢华大气,客厅和卧室做了简单的隔断,神秘的紫色和华贵的银色搭配更显奢华精致
卧室的装修是严谨的,卧室床头柜要根据床的大小而定,1500mm的床放500mm左右的床头柜,1800mm的床需要放600mm宽以上,高度略低于床面就是最合适的;10平方米的卧室配1.2m一下的床,10平米至-20平米配1.5m的床,20平米以上的卧室需要配1.8m以上的床。电视尺寸在37寸-42寸最佳,衣柜高度至少1800mm,柜体深度不超过600mm等。
卧室整体空间在灯光的设计上做了较多层次的光源处理来加强层次感
欧式花纹的瓷砖构成了墙砖与地砖,统一的材质即延伸空间又在形式上形成统一,采用白色橱柜与石质台面的结合,使得这个小空间也具有精致与大气
卧室衣柜设计为内嵌式,既节省空间,又美观大方
餐厅装修的时候一定要兼顾软装和硬装,把控好材质的对比和色彩的统一。冷暖色调搭配适宜,让视线更加柔和,居室更加温馨。
考虑到过道很窄,设计师巧妙地用那段过道做了餐厅,并且靠边做了吧台设计,也使得空间更有层次!
一个宽敞明亮的厨房会给人带来好心情。有多种办法来提高厨房的空间感:比如墙壁和柜面选用大面积舒适的浅色调,做大量好用的柜子和架子,使厨房物件色调搭配尽量和谐,点缀绿色植物,开凿大窗或者安装灯具来提升厨房的整体亮度。
厨房空间偏窄,一扇窗户为餐厅空间增加了许多自然采光
书房需要安静与沉稳,才能够让人可以平心静气的学习工作,在书房装修设计时,还需要与整体的装修风格相互搭配,才能打造更为舒适惬意的书房空间。
阳台部分设计成了书房与梳妆台,充分利用了每一处空间
以下就是本套天山四村小区40平米一居室房子的户型图。
户型:一室两厅一卫面积:40平方米
上面介绍的40平米一居室装修案例对你有一定的启发吗?本套案例属于欧式风格,装修总预算4万,装修业主可以参考本套案例来制定自己的装修设计方案及装修预算。
相关问答
话说当初选择 天山四村 房子有后悔的吗?原因是?物业费太多了
相关文章

最新评论